Italiano
265.000 €

CONEGLIANO - Zona Centro

Appartamento in vendita • Conegliano (Centro)
APPARTAMENTO SIGNORILE CON AMPIO TERRAZZO LOGGIATO – 3 CAMERE / 120 MQ – ZONA CENTRALE

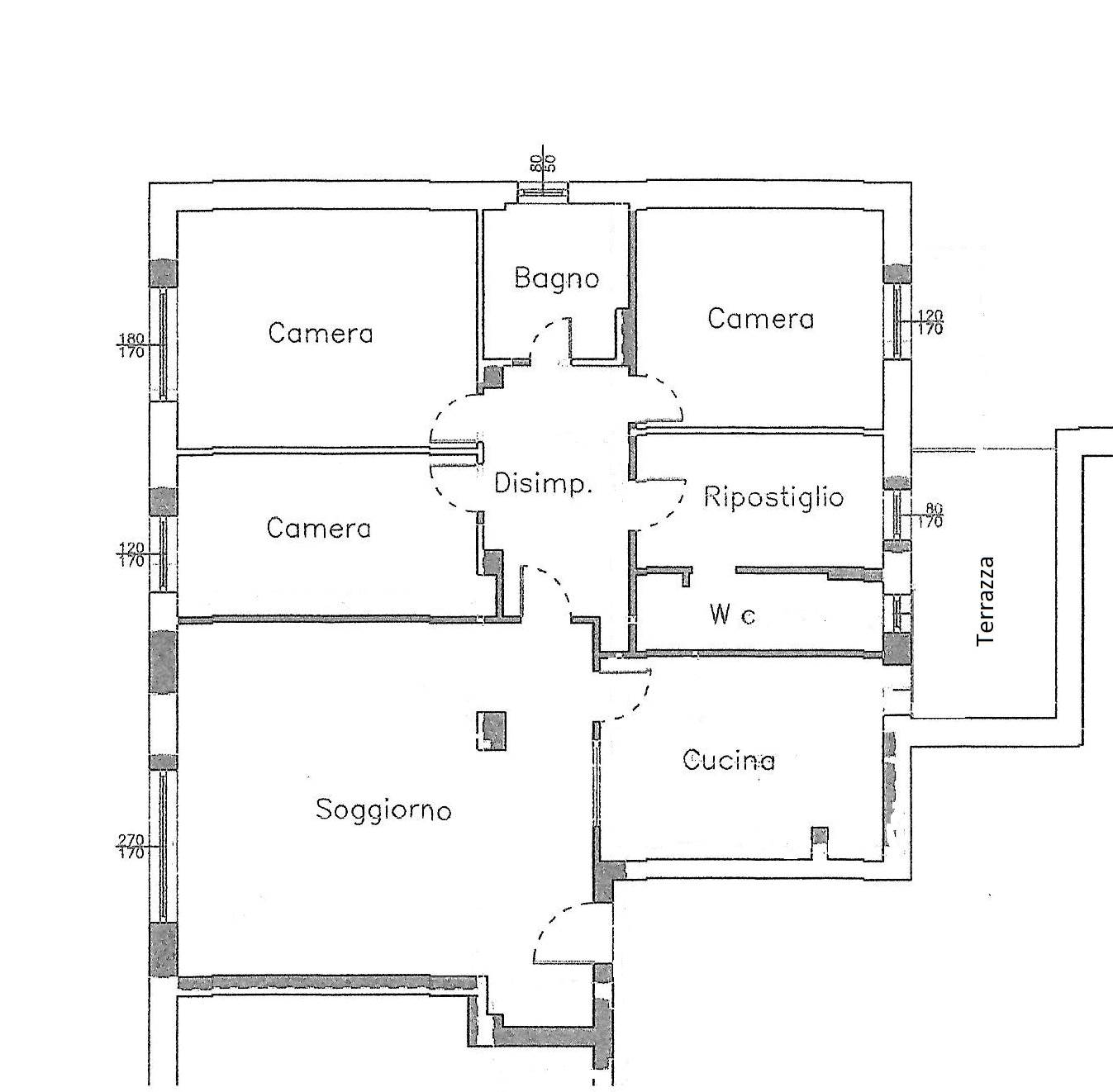
Proponiamo in vendita un elegante appartamento di 120 mq, situato al terzo piano con ascensore, caratterizzato da spazi generosi e da un ampio terrazzo loggiato che offre un’eccellente privacy.

Inserita in una posizione strategica, a pochi minuti dal centro storico e comoda a tutti i principali servizi, questa soluzione rappresenta l’ideale per chi desidera comfort, vivibilità e un contesto residenziale curato.

Caratteristiche principali:
Luminoso soggiorno di ampia metratura
Cucina abitabile, funzionale e con accesso diretto al terrazzo
Tre camere da letto: una matrimoniale, una doppia e una singola
Grande ripostiglio, ideale come spazio multifunzionale
Due bagni finestrati, uno dei quali adibito anche a zona lavanderia

Finiture e dotazioni:
Pavimenti in parquet nella zona giorno e notte
Ceramica in cucina e nei bagni

Serramenti con vetrocamera e zanzariere

Riscaldamento centralizzato con conta-calorie

Accessori e pertinenze:
Box auto chiuso al piano terra (11 mq)
Cantina privata (4 mq)

Contesto e posizione:
L’immobile è inserito in un condominio ordinato e silenzioso, in una zona ottimamente servita da scuole, asili, uffici pubblici, ospedale e principali vie di collegamento. Una soluzione perfetta per chi cerca tranquillità senza rinunciare alle comodità della vita quotidiana.

Punti di forza:
Metrature generose e ambienti ben distribuiti
Ottima esposizione e luminosità naturale
Terrazzo loggiato ampio, vivibile e riservato
Contesto residenziale curato
Posizione strategica e ben servita

📍 Agenzia Immobiliare San Rocco – Conegliano
🌐 www.immobiliaresanrocco.it
Caratteristiche principali
Codice
V000463
Città
Conegliano (Centro)
Categoria
Appartamento
Prezzo
265.000 €
Spese condominiali
2.500 € / anno
Locali
8
Camere
3
Bagni
2
Mq
120
Mq Box
11
Terrazzi
1
mq Terrazzo
9
Piano
3
Classe energetica
E
117,07 kWh/m²a
Stato Immobile
Abitabile
Grado
Signorile
Posizione
Centro
Panorama
Vista Aperta
Orientamento
Est Nord Ovest
Lati Liberi
3
Arredi
Possibilità
Tipo Soggiorno
Salone
Tipo Cucina
Abitabile
Riscaldamento
Conta Calorie
Tipo Impianto
Radiatori
Acqua Calda
Autonoma
Raffrescamento
No
Infissi
Legno Doppio Vetro
Serramenti
Buono
Persiana
Tapparella PVC
Pavim. Giorno
Parquet
Pavim. Notte
Parquet
Pavim. Cucina
Ceramica
Pavim. Bagno
Ceramica

Accessori: Ascensore, Doppi Vetri, Lavanderia, Porta Blindata, Ripostiglio, Zanzariere

Condividi su
Cookie preference